产品展示
联系我们
北京英昱光能科技有限公司联系人:付总
手 机:4009966791
地 址:北京市昌平区北七家镇王府街31号院C座102室
您现在的位置是:网站首页 > 产品展示
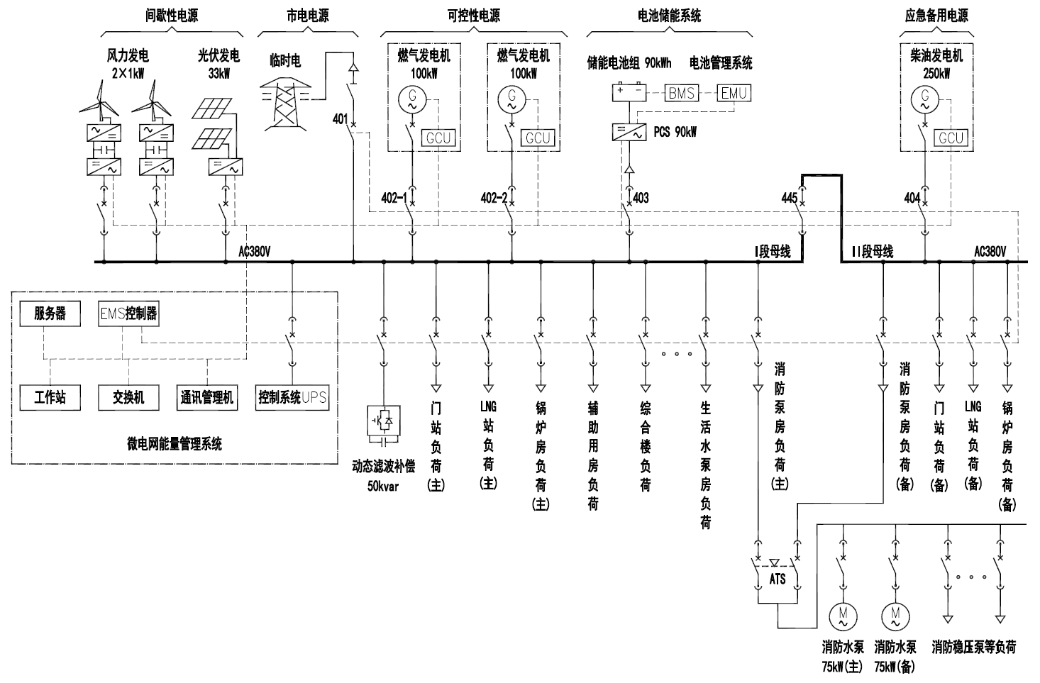
智能微电网系统






